Digital Collection
2013.042.101

Drawing, Technical

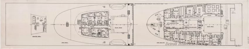
Aft Cabins and Dunnage Deck

Aft Cabins and Dunnage Deck (sheet 6 of 9) of the plan set entitled, "Booklet of General Plans, Hull No. 300, Built By River Rouge Plant of Great Lakes Engineering Works, River Rouge, Mich." This sheet is a blackline reproduction that shows the drawing line work and text in black on mylar. The drawing was done at a scale of 1/8 inch = 1 foot and shows plan views of the spar, poop, and dunnage decks in the aft section of the steamship, SS William Clay Ford.

Date
c.1980
Collection
Extent of Description
50.75" x 9.625"
Request Image